FOREST HOUSE

Passive House

case study in Co. Fermanagh

Inspired by Louis Kahn’s words,

β€œArchitecture is the thoughtful making of space”

Our goal is to design a Passive House that blends seamlessly within the natural topography and both compliments and enhances the surrounding landscape.

The site is located just outside of Enniskillen in County Fermanagh. This new dwelling has been designed to meet the rigorous Passivhaus (Passive House) standards to provide a cost-effective new dwelling to construct, run and maintain.

A landscape led design approach has been followed to respond to the specific site characteristics, with the proposed dwelling’s form and materials being chosen to visually integrate within the existing site landscape and its surroundings.

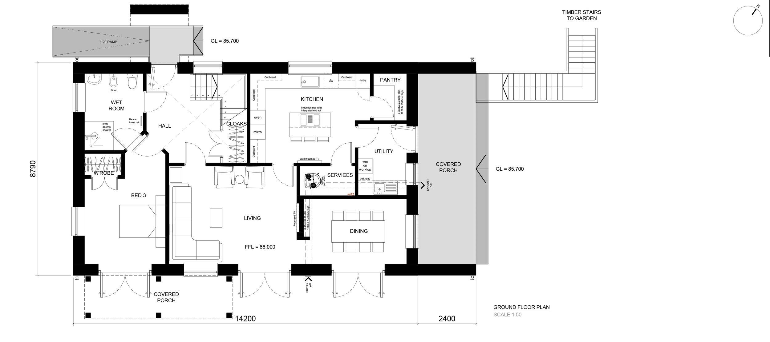
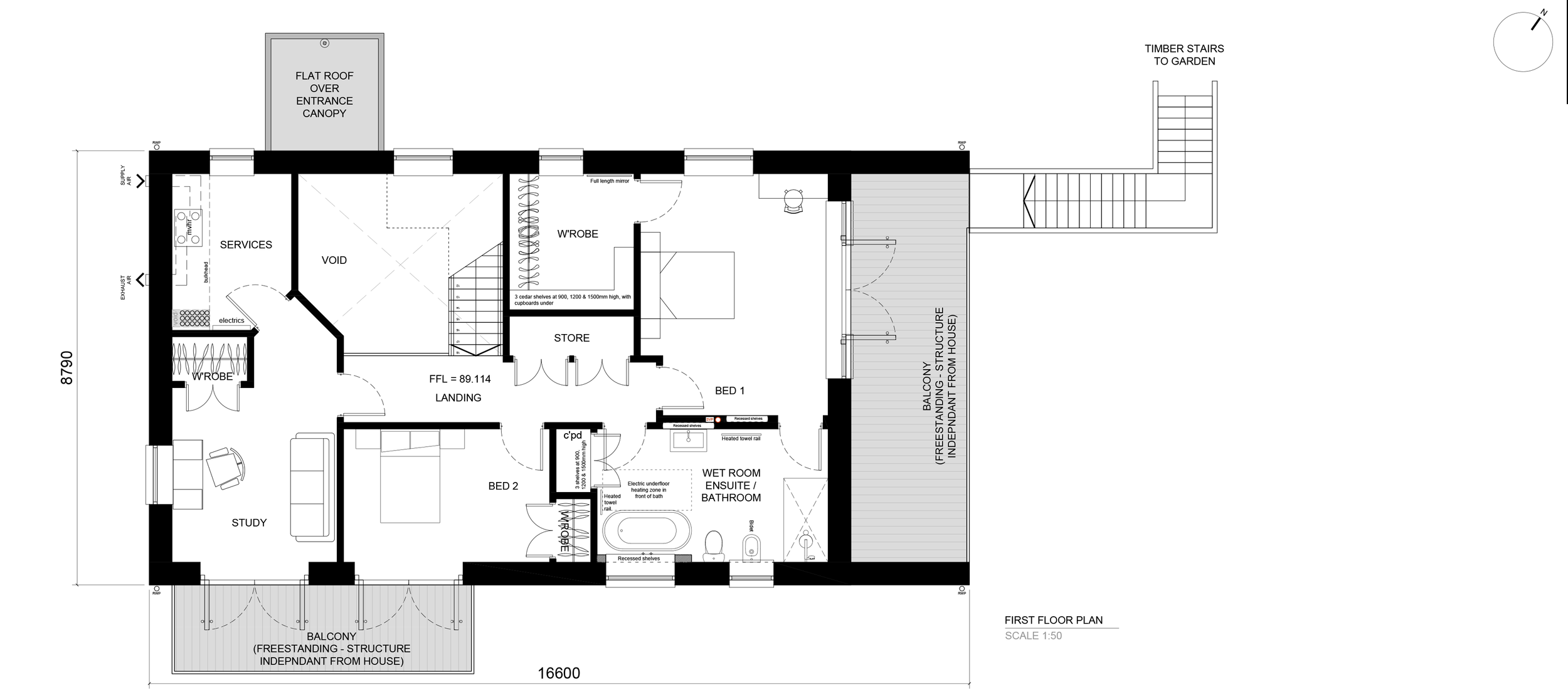
The GIA is 195m2 / 2,100 ft2 and TFA (treated floor area) is 180m2 / 1,940 ft2. Form factor is 3.04 and the building mets the Passive House Classic criteria with a Heating Load of 10 W/m2. It also achieves a SAP Rating of 96 A. Roof mounted solar PV panels will be installed providing approx. 4kW electricity to power the new house. The high performing building envelope includes; triple glazed windows, MVHR (mechanical ventilation heat recovery), thermal bridge-free construction and an airtight detailing strategy.

This Passive House case study dwelling also exceeds the NI building regulations Part F - Conservation of fuel and power - regulation 43B, that requires all new dwelling houses to be a β€˜nearly zero-energy building’ (nZEB) by achieving a minimum 40% reduction in CO2 emissions (kg of CO2 per m2). This building achieves a 85% reduction in CO2 emissions.

By designing to the Passive House standards, this new dwelling complies with the NI building Regulations, including the nZEB requirements.

Previous
Previous

Northern Lights in Ireland

Next
Next

Farm House Passive House