FARM HOUSE β Passive House case study in Co. Fermanagh
Inspired by Leonardo da Vinciβs words,
βSimplicity is the ultimate sophisticationβ
Our goal is to design a Passive House that blends seamlessly within the natural topography and both compliments and enhances the surrounding landscape.
The site is located just outside of Enniskillen in County Fermanagh. The surrounding area is rural in character with the predominate use agricultural fields and one-off dwellings and agricultural buildings.
The proposed dwelling and garage have been located within an area in the field where they are visually linked to the existing farm buildings.
The GIA is 255m2 / 2,750 ft2 and TFA (treated floor area) is 237m2 / 2,550 ft2. Form factor is 2.76 and the building mets the Passive House Classic criteria with a Heating Load of 10 W/m2.
Ground mounted solar PV panels generated approx. 12kW electricity for the new home, and the high performing building envelope has triple glazed windows, MVHR (mechanical ventilation heat recovery), thermal bridge-free construction and an airtight detailing strategy.
This Passive House case study dwelling also exceeds the NI building regulations Part F - Conservation of fuel and power - regulation 43B, that requires all new dwelling houses to be a βnearly zero-energy buildingβ (nZEB) by achieving a minimum 40% reduction in CO2 emissions (kg of CO2 per m2). This building achieves a 89% reduction in CO2 emissions.
By designing to the Passive House standards, this new dwelling complies with the NI building Regulations, including the nZEB requirements.
Farm House site location
Farm House existing site
Farm House proposed site
Farm House site photo
Farm House site photo
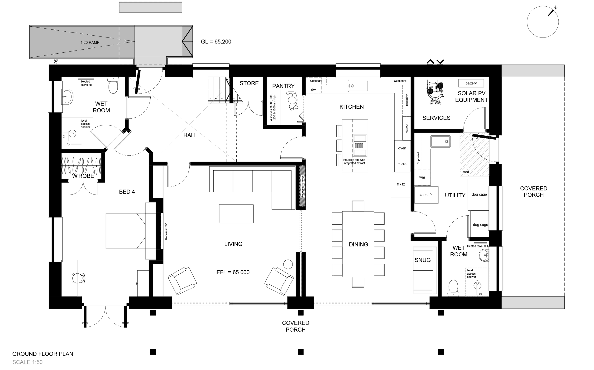
Farm House ground floor plan
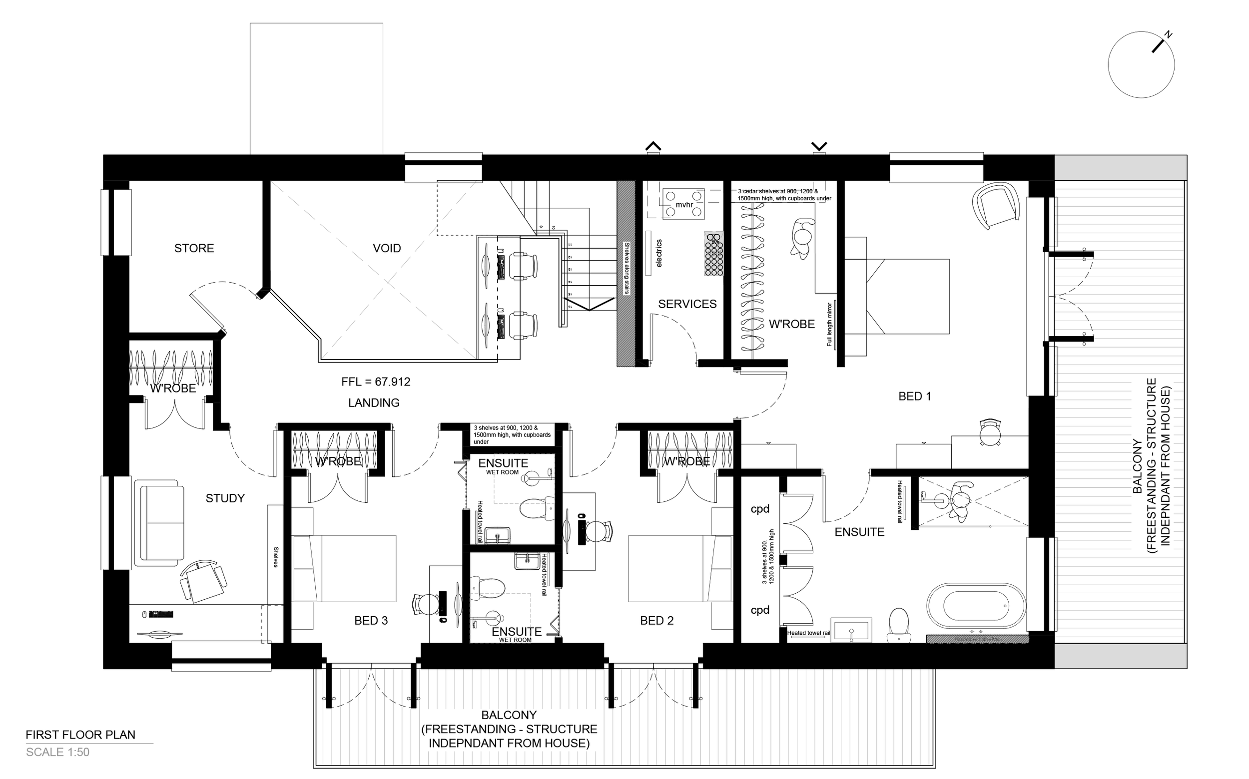
Farm House first floor plan
Farm House section
Farm House north elevation
Farm House south elevation
Farm House east elevation
Farm House west elevation
Farm House roof plan
Farm House SketchUP model
Farm House Passive House key criteria
Farm House visualisation entrance
Farm House visualisation rear garden
Farm House visualisation sketch
Farm House visualisation sketch